Attività commerciale adibita a pizzeria e tavola calda
Riservato
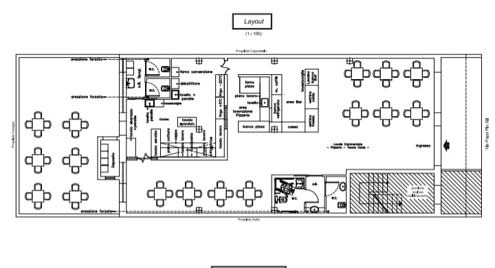
Nel comune di Poggiardo, in prossimità del centro, si vende attività di trattoria-pizzeria-rosticceria ben avviata da ben 23 anni e molto conosciuta su tutto il territorio, con ottima reputazione. Il locale è composto da una saletta antistante la zona bar, con vari posti a sedere, bancone bar/rosticceria, postazione del forno per la pizzeria, altra saletta laterale che consente altri 35 posti a sedere, ampia cucina e i vari servizi obbligatori per legge. Completa la struttura, cortile retrostante con ulteriori posti da sfruttare durante la stagione estiva. L'attività viene ceduta completa di tutti gli arredi e le attrezzature, pronta per essere operativa fin da subito con ottime garanzie di sviluppo vista la sua avviatissima conoscenza sul territorio. TRATTATIVA RISERVATA.
Posizione dell'immobile


























